火神山医院空调设计解析

火神山医院虽然是在病毒肆虐、患病人数增多、形式紧迫情况下的临时医院,看似临时,看似简单,实际要求非常之高,非常之速。速度之快,快到明早就要图。
火神山医院地上总建筑面积25000平方米,局部地上2层。施工单位是由中建三局、武汉建工、武汉市政和汉阳市政共同建设的。在施工期间,所有施工单位都是两班倒,白加黑,997工作模式,有4200余名工人,1000台大型机械,1650间箱式板房,1500个门樘,混凝土1.4万方,HDPE膜10万平方米,分包单位上百家。
小火神山采用集装箱式箱体活动板房进行模块化拼接,板房形成标准单元。这几年国家大力提倡装配式建筑,不同于小汤山,小汤山建设已经是17年前的事,当时我们国家的建筑技术与今天相比有很大差距,小汤山可供选择的建筑材料没有现在这么多,工业化程度也没有现在高,小汤山当时基本上采用轻钢骨架与复合板的形式来搭建。
火神山医院的建筑、结构、机电有其特殊性。
1.建筑
按照传染病医院要求,分不同洁净污染区域。病区双走廊设计,病房设置传递窗,用于一般物品传送。医护区域设置两次卫生缓冲区、穿脱防护用品区和洁净通道。
2.结构
设置土工布、土工膜等防渗材料,设置配筋的条形基础和防水底板以及型钢架空层(用于放置水专业管线,免去开挖时间)。
3.给排水
设置传染病医院用医疗污水处理系统,病房等污染区的空调冷凝水按医疗污水处理。污水处理设备采用一体化钢结构设备,节省混凝土施工时间。
4.暖通
病房使用分体空调,避免中央空调集中风管窜风。送风和排风按照污染洁净分区设置压力梯度,污染区排风设置高效过滤器,首先重点说一下空调设计。
5.电气
按照负荷等级设置备用电源(双电源、柴油发电机组和不间断电源设备),其中雷神山市政用了4路市电,配电采用箱式变压器,环网配电。
笔者汇总了一下火神山空调设计图纸、专家采访、现场报道、网络照片以及施工情况,简要解析火神山医院空调系统设计要点。
一、选址及风向考虑
因其特殊性,在选址上,传染病医院不宜设置在人口密集的居住或活动区域,靠近下风口。武汉市以东北风为主导风向,火神山的选址西南向水,处于城市的下风带,这样的选址对城市污染的可能性最低。
图片来源:知乎
二、空调系统考虑到当地气候
武汉湿润。湿润的气候条件可能利于病毒的生存和传播,对医院的防水工作提出了更高的要求。病房区分体空调较中央空调干扰少,应急安装简单,因此火神山采用分体空调,带辅助电加热。为了保证冬季制热效果,每间病房预留辅助电油热汀插座备用。在这么短的工期里,没办法建立起一套集中供暖系统,火神山采用的是分体空调取暖,因为建筑进风量大,在进风段还设置了加热装置,室内的通风管道也包裹了保温层,避免热量流失。
室内通风管道,包裹橡塑绝热保温层,图片来源:新华网
空调安装,图片来源:新华网
三、有组织有序送风排风
传染病医院平面布局的基本要求是 “三区两通道”,三区是指清洁区、 半污染区和污染区。建筑平面采用鱼骨状形式,在分区划分时考虑到医务人员要有自己的清洁工作区和对应的连续通道,鱼骨状形式的另外一个好处就是随时可以接龙扩建。
图片来源:中信设计院公开图纸
见下图,清洁区与污染区之间要有过渡区域。正中央竖直的通道是清洁医护通道。两侧横向的通道是一般医护通道。内部红色的箭头是医护人员的流线,外部紫色的箭头是病人的流线,二者没有交叉。
图片来源:中信设计院公开图纸
且写有“污染区”“半污染区”“清洁区”被标注成不同颜色加以区分。医护人员在病房外楼道内的墙壁上依次张贴相关区域标识。
图片来源:央视网

因此,空调设计各种房间要按照清洁区、半污染区和污染区设置独立的空气环境的机械通风系统。开窗自然通风并采用电风扇虽然能够起到一定的稀释室内污浊空气的作用、并加强了室内空气扰动,但是不能保证污染区的不洁气流流向其它区域。而强制合理的组织气流是保证气流有序流动的可靠手段。清洁区、半污染区和污染区的机械通风系统按区域独立设置。
独立通风系统,图片来源:中信设计院公开图纸
室外通风管道,图片来源:知乎

暖通专业的特殊之处,在于实现各个区域不同的空气压力梯度,清洁区压力最大,半污染区次之,污染区压力最小,在这样的气压环境下,才能保证室内的空气永远保持从清洁区向污染区流动,减少感染。建立合理的气流流向,阻止污染区内的不洁气流流向其它区域。
通风空调系统必须根据医疗建筑的功能、人流物流方向,使空气有序流动。可以说,正确的空气流向能够起到对病毒、细菌等感染的屏障作用。污染区(病房及病员通道)为负压区,半污染区(护士站、处置治疗室)为微负压区,清洁区(办公室、值班室)为正压区。保证气流沿清洁区→半污染区→(缓冲区)→污染区→室外的顺向流动,杜绝逆向流动或乱流。
保证负压隔离病房与其相邻相同的缓冲间、走廊压差,应保持不小于5Pa的压差。
四、污染较严重的场所设独立排风系统
对化验室、处置室、换药室等污染较严重的场所,设局部单独排风系统。“就如同市民戴口罩一样,我们把污染较严重的场所、病人、工作区做了一个有效的隔离和分隔”。在空气组织上形成负压的气流,避免病人和医护人员的相互感染。
屋顶管道和设备,图片来源:新华网
五、医护房正压,病房负压
医护人员走廊及医护人员房间:设置集中送风系统和排风系统,送排风量差值维持室内正压,防止污染区空气流向该区域。
负压隔离病房与其相邻区域缓冲间、洁净走廊压差应保持不小于5pa的负压值。火神山各区域的压力值如下表:
来源:火神山空调设计说明
室外通风管道,图片来源:知乎
六、冷凝水不外排
火神山医院所有安装分体空调机的病房冷凝水都不得随意排放,排至病房卫生间的地漏,最后同污水、废水集中处理后再排放。
七、送风高效过滤
火神山医院空调图纸显示,所有送风系统均设置初效、中效、高效过滤器,以保证送风洁净。虽然设计写了高效,没提到具体用什么等级空调过滤器,但是高效过滤器对应中国的标准是H12及以上。
对于重症监护病房当室外空气质量恶劣时,送风(新风)系统必须设置高效过滤器,初效+中效+高效组合,这是净化空调的配置,比N95口罩过滤等级更高,N95是0.3微米的过滤效率95%,大约是H10,或H11能达标,H10和H11是亚高效。根据世界卫生组织的资料,当PM2.5颗粒物浓度在10以下时,呼吸道等疾病的健康风险最低。
图片来源:暖通设计手册,JACK Cao提供
横穿走道的空调管道,图片来源:新浪网
八、排风高效过滤
所有排风系统均设置初效、中效过滤器、高效过滤器。新冠状病毒粒径约80~120nm,控制病毒排除到室外,对外的污染,排风不能直接外排,过滤非常重要,要将病毒都拦截下来,再加紫外线灭菌装置,以保证核心部件:空气处理设备无论开关均不给菌群生长的空间。新风量加大对房间的病毒有稀释作用,但排风对防病毒传播更重要。而且对于病房排风量要比新风量大,从火神山设计看,病房房间的送风量是600m3/h,排风量是800m3/h,排风量大于新风量。
图片来源:央视网
设计呼吸道传染病污染区和半污染区内的排风系统,在系统末端设置高效过滤器(不低于H12级)控制菌落数和气凝胶,限制病毒的宿源,抑制受控环境的人员释放病毒和细菌滋生条件。
所有送风系统的室外进风口均采自高空空气,进风口距屋面6米。送、排风口间距尽量远离,水平间距至少20.0米以上。
图片来源:央视网
九、空气防渗
医疗建筑室内外的空气渗漏比较重要,因此需要堵封房间与房间,房间与公共区域的孔洞、缝隙并消除所有病毒可能渗入的源头,且房间设有缓冲区,在病人收住期间,空调要连续运行通风系统,防止所有可能的污染空气反流倒灌。

火神山空调图纸,来源:中信设计院公开图纸
十、换气次数与风量
换气次数与风量用以保证从污染区病毒的扩散需要的气流组织流向,从火神山医院的设计看。
保证人员的呼吸空气质量的要求(人员的呼吸量:正常成年人每分钟呼吸大约12-20次,一般不超过1次/小时,当病人伴有发热、疼痛、贫血、甲状腺功能亢进及心肺功能衰竭时呼吸量可能会加倍;
清洁区的最小换气次数为4次/小时;
呼吸道传染病区门诊、医技用房、及病房、发热门诊的最小换气次数(新风量)为6次/小时 ;
负压隔离病房的最小换气次数(新风量)为6次/小时;
清洁区每个房间送风量应大于排风量,至少150m3/h;
污染区每个房间排风量应大于送风量,至少150m3/h;
病房换气次数6次/小时感觉有点少,按照之前小汤山的标准,病房换气次数是12次/小时。集中新风不带冷热负荷,通过分体空调加热,集中新风量就不能太大。集中新风处理冷热负荷,新风量加大才可以实现,当然是越大越好。
下面是不同换气次数对应的颗粒去除时间。
图片来源:暖通设计手册
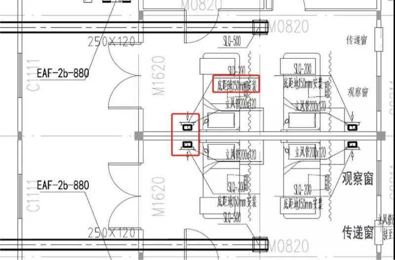
十一、下排上送防短路
防止污染空气及新鲜空气发生短路新风口及排风口应保持距离,至少排风口的剩余压力或高度应保证排风100%不混入新风的吸入口送风;室内送风口应布置在上部,排风口在下部,因为病菌等不洁空气集中在下层空间,这样有利于排风效果,图上看出距离地面0.15米(见下图)。
负压隔离病房在排风口设置高效过滤器及远程可独立开关的电动密闭阀门;
火神山医院空调图纸,来源:中信设计院公开图纸
总之,火神山医院空调设计与普通民用建筑区别很大,非常之特殊。交付的医院的空调系统有分区,有组织,有正负压,有过滤,有二次污染传播防止,有杀菌。每间病房单独设置不循环的新风系统和排风系统,它们共同构成负压系统,保持病房空气新鲜洁净,排出气体经消毒后才会排入空气中。
1